











Varðagøta 49
100 Tórshavn
seltPrísur
3,000,000Slag
Sethús
Stødd
123m²
Grundøki
524m²
Hædd
1
Kømur
2
Ár
1977
Hús í Gundadali
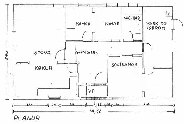
Húsini liggja á einum bakka beint við viðalundina, og hava tí sera gott útsýnið yvir býin og Nólsoyarfjørð. Við tí góðu staðseting er stutt oman í býin og til allar hentleikar, so sum dagstovn, skúla og handlar. Húsini eru í einari hædd við køk, stovu, baðirúm og tveimum kømrum. Upprunaliga vóru 4 kømur, men eru hesi løgd saman til 2.
Húsini brúka umleið 1.100 kr. í olju um mánaðin.
Ogning liggur í øki A1 hjá Tórshavnar Kommunu, sí eisini fylgiskjal "Annað".
Talan er um eina ogn við góðum møguleikum, frálíkari staðseting og góðum útsýnið. Áhugaði eru vælkomin at skriva niðanfyri í samband, ella ringja til okkum á tlf. 26 80 70.
Fylgiskjøl
Skuffesøla
Vit para fólk saman
Ikki allar eignir eru á almenna marknaðinum. Vit vita um eignir í skuffuni og para kaupara og seljarar saman — diskret og persónligt.
Eignir í skuffuni
Vit hava yvurlit yvir eignir, sum ikki eru lýstar opinberliga. Sig okkum hvat tú leitar eftir, so pröva vit at finna eitt samansvar.
Sel diskret
Ynskir tú at selja uttan almenna lýsing? Vit kunnu para teg saman við rætta kauparan uttan at lýsa opinberliga.
Byt eign
Ynskir tú at skipta? Vit kunnu para teg saman við onkran, sum hevur tað tú leitar eftir.











